Porzione di bifamiliare in vendita

Rivarossa, Viale Paradiso
€ 275.000
7 locali 7 locali
170 Mq 170 Mq
2 bagni 2 bagni

Porzione di bifamiliare in vendita

Rivarossa, Viale Paradiso

Descrizione annuncio

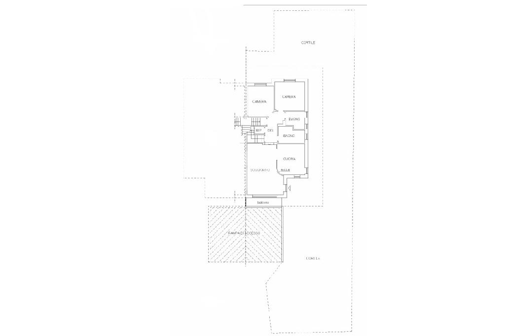
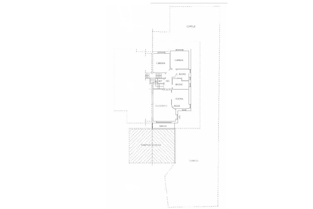
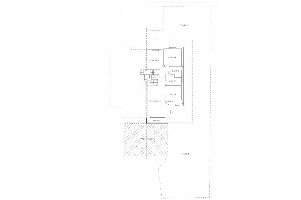
In zona residenziale, precisamente nel 'Villaggio Paradiso', porzione di bifamiliare con ampio giardino privato. L'accesso all'immobile è su zona giorno caratterizzata da soggiorno con camino a legna e cucina abitabile a vista. Il corridoio separa la zona notte composta da camera da letto matrimoniale, una cameretta, il ripostiglio e doppi servizi, di cui uno con doccia e uno con vasca. Da comoda scala interna in muratura si giunge al piano superiore che si compone di due locali rifiniti utilizzabili in base alle proprie esigenze. Al piano interrato è presente un box auto doppio, due cantine ed un ampio locale ad uso tavernetta con camino. L'immobile è stato oggetto di ristrutturazione nel 2008, è stato rifatto l'impianto elettrico ed idraulico, gli infissi sono con il doppio vetro, la pavimentazione è uniforme in tutti gli ambienti, le tapparelle sono elettriche ed il portoncino è blindato. L'immobile è dotato di due sistemi di riscaldamento, caldaia a metano a condensazione sostituita nel 2018 e termocamino, ideale per abbattere i costi di gestione. E' presente l'impianto fotovoltaico e solare. L'area esterna è definita da giardino privato, cortile e patio ideale per momenti di relax.

Mostra tutto

Nelle vicinanze

Trasporto pubblico Trasporto pubblico
Rivarossa (Deposito)
Rivarossa (Deposito)
930 m
Rivarossa (fraz. Grangetto)
Rivarossa (fraz. Grangetto)
980 m
Scuole Scuole
Scuola Primaria Antonino Bertolotti
2,5 Km
Farmacia Farmacia
Farmacia Comunale 22
1,4 Km
Negozi Negozi
Negozi
2,1 Km
Mostra tutto

Caratteristiche

Rif.:
61116034
Piano:
Terra con giardino di 3
Totale piani:
3
Box:
1
Posti auto:
1
Balconi:
1
Mostra tutto
Prezzo Prezzo
€ 275.000
Rata mutuo Rata mutuo
€ 1.297 / mese
Spese annue Spese annue
€ 0
Proponi il tuo prezzoProponi il tuo prezzo

Classe Energetica

E
E
E
E
E
E
E
E
E
EP globale non rinnovabile:
146.21 kW h/m² anno
Anno di costruzione:
1979
Riscaldamento:
Autonomo
Tipo impianto:
A radiatori
Tipo alimentazione:
Metano

Ti interessa visionare l'immobile?

Fissa un appuntamento  Fissa un appuntamento

Richiedi informazioni

Clicca su Leggi per aprire l'informativa
* Questi campi sono obbligatori

Calcola il tuo mutuo

Semplice e senza impegno
Anticipo

( % )
Mutuo

( % )

pochi semplici passi

inserisci i tuoi dati
Questionario completato
Grazie per aver richiesto un appuntamento senza impegno con un nostro Consulente del Credito e Assicurativo.

Hai inserito correttamente tutti i dati necessari e a breve riceverai una e-mail con un link da convalidare per inviare i tuoi dati.
Affiliato
Studio Reale Sas
Via Re Umberto I, 1 10080 San Benigno Canavese (TO)

Il nostro staff


  • Giuseppina Reale
    Affiliata
Via Re Umberto I, 1 10080 San Benigno Canavese (TO)
Zona: San Benigno C.se-Bosconero-Lombardore-Rivarossa-Montanaro
Mostra su mappa
Affiliato
Studio Reale Sas
Via Re Umberto I, 1 10080 San Benigno Canavese (TO)

2025 Tecnocasa Franchising S.p.A. - P. IVA 08365160152 - Via Monte Bianco 60/A 20089 Rozzano (MI). Ogni agenzia ha un proprio titolare ed è autonoma. Privacy policy | Policy utilizzo | Cookie policy